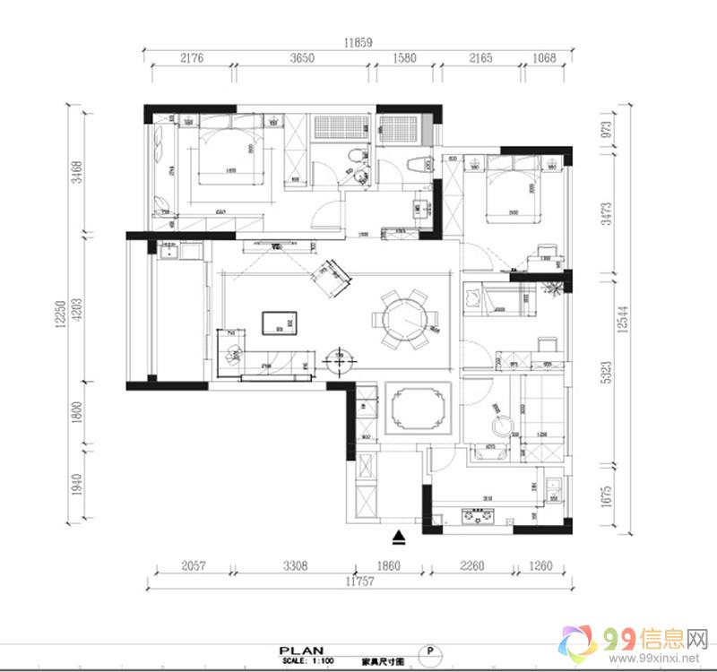
南京尚书云邸新中式装修设计案例,南京新爱华装饰,南京尚书云邸装修,南京尚书云邸室内装修设计就找新爱华装饰(咨询电话:13951014237).南京新爱华装修设计公司装修案例,南京新爱华装修案例欣赏
案例:尚书云邸
风格:新中式
建筑面积:112
小全包:10.5W
设计说明:
新中式风格,也被称作现代中式风格99xinxi.net。新中式风格设计,既是中国传统风格文化与现代时尚元素的融合与碰撞,又是在中国当代文化理解基础上的现代设计99xinxi.net。
一谈到“新中式设计”、“现代中式风格设计”,大家的脑海中一下子就联想到中国风的传统家具、古典的装饰以及鱼、鸟、花、虫的装饰9~9~x~i~n~x~i~n~e~t。但其实不然,新中式设计更是在原来传统中式的风格上添加了一些时尚的现代元素,是现代风格与中式风格的完美融合www.99xinxi.net99信息网。
新中式风格中的家具:大多是古典家具或者是现代家具与古典家具想结合原文www.99xinxi.net。
家具的颜色:主要是以深色为主,有深厚沉稳的底蕴9+9+信+息+网。
装饰造型:主要采用硬朗简洁的直线条,空间具有层次感99信息网www.99xinxi.net。既使得中式家具古典、质朴的内涵显现,又符合现代人追求的时尚感、实用性99xinxi.net。

玻璃门是一种非常美观的门,它的透明度高,安装之后能让空间显得宽阔,而且整洁有序。玻璃门使用频繁,出故障的概率就会很大。当玻璃门发生故障,一定要及时进行维修,避免小问题慢慢演变成大问题。(南京艾雨特维修

健身房镜子安装方法健身房镜子安装方法参考:1、首先,需要聘请专业的人员进行健身房所需铺设镜子的墙面的尺寸测量并进行定制。在测量墙体的时候,需要充分考虑到墙面的承受能力,不能够破坏墙体。一般来说,健身房

舞蹈演员的一切动作机能只有在本体感觉的基础上才能形成。我们在舞蹈房里安装镜子,目的就是帮助跳舞的学员通过视觉感知姿态的正确,或纠正错误的动作,进而借助本体感受器去体会、感知每一动作中肌肉、肌腱、韧带的

艾雨特钢化玻璃门是使用钢化后的玻璃制造而成的玻璃门,以预应力玻璃制成的门,使用化学和物理的方法提高了玻璃的强度和承载能力,这种门的玻璃增强了自身的寒暑性、抗风压性、冲击性等。目前,现代钢化玻璃门工艺美

本公司定做玻璃门,维修玻璃门,感应门,公司承接维修业务,有专业的安装、维修人员,更换玻璃门各种型号地弹簧、多玛地弹簧,GMT地弹簧,H-220BH-220CH-222H-322OTM_8210等,玻璃

家用玻璃雨棚是由玻璃和框架结构两部分组成,所以在购买玻璃雨棚是,要考虑这两部分的成本价。玻璃的价格一般在每平米200元到500元之间,再加上钢结构成本,玻璃雨棚平均价格在每平方米600元到1200元之

舞蹈演员的一切动作机能只有在本体感觉的基础上才能形成。我们在舞蹈房里安装镜子,目的就是帮助跳舞的学员通过视觉感知姿态的正确,或纠正错误的动作,进而借助本体感受器去体会、感知每一动作中肌肉、肌腱、韧带的

艾雨特钢化玻璃门是使用钢化后的玻璃制造而成的玻璃门,以预应力玻璃制成的门,使用化学和物理的方法提高了玻璃的强度和承载能力,这种门的玻璃增强了自身的寒暑性、抗风压性、冲击性等。目前,现代钢化玻璃门工艺美

玻璃门是一种非常美观的门,它的透明度高,安装之后能让空间显得宽阔,而且整洁有序。玻璃门使用频繁,出故障的概率就会很大。当玻璃门发生故障,一定要及时进行维修,避免小问题慢慢演变成大问题。(南京艾雨特维修

艾雨特钢化玻璃门是使用钢化后的玻璃制造而成的玻璃门,以预应力玻璃制成的门,使用化学和物理的方法提高了玻璃的强度和承载能力,这种门的玻璃增强了自身的寒暑性、抗风压性、冲击性等。目前,现代钢化玻璃门工艺美

瑜伽馆镜子安装、健身房镜子、江宁舞蹈房镜子安装

玻璃隔断加工安装、舞蹈房镜子安装、健身房镜子安装、瑜伽馆镜子安装

南京江融智慧信息科技发展有限公司成立于 2017 年 03 月 20 日,是一家深耕江宁区、服务全域,专注于智慧工程、信息化建设与城市配套服务的综合型技术服务商。公司自成立以来,始终立足本地市场,聚焦政企单位、园区社区、市政交通、商业综合体、公共服务等多个领域,以专业技术、成熟施工与完善服务为核心优势,为客户提供从方案设计、项目实施到后期运维的一站式全链条解决方案。

南京江融智慧信息科技发展有限公司成立于 2017 年 03 月 20 日,是扎根南京、面向政企与公共领域的智慧工程与信息化综合服务商,专注为城市治理、园区管理、公共空间、企事业单位提供一站式解决方案与落地服务。

艾雨特钢化玻璃门是使用钢化后的玻璃制造而成的玻璃门,以预应力玻璃制成的门,使用化学和物理的方法提高了玻璃的强度和承载能力,这种门的玻璃增强了自身的寒暑性、抗风压性、冲击性等。目前,现代钢化玻璃门工艺美

在舞蹈教室里安装镜子应该最可能地让学员看到自己的动作和肢体造型,让老师处在任何一个位置都能看到任何一个学生;镜面景象准确不变形。为了达到这个目的,又要减少费用,建议在安装中参考这样的意见:1、材质镜面

李姐回收冬虫夏草东阿阿胶微信号《138,1133,7577》冬虫夏草九朝贡胶5X极草含片,近期东阿阿胶,老阿胶回收冬虫夏草qq59,388,9206高价收购同仁堂总统牌70克90克礼盒燕窝,各种5A?

南京市╒收购冬虫夏草~定量25克至500克或以上数量不限。匹配礼品瓶、盒、罐、袋、兜等定量包或散装产品V话①③⑥⑨⑨①②②②②①同号╕冬虫夏草回收常见规格2个、3条、4头、5根、6只一克重量单位的。求

南京市礼品回收:冬虫夏草、淡干黑海参、白燕窝、鹿茸、茅台酒、老酒、洋酒、高档红酒V136(话)991(同)22221(号)”产品价格是同等产地、厂家、规格还要看干度、颜色、数量、几级品、和生产日期而定

南京市礼品回收:冬虫夏草、淡干黑海参、白燕窝、鹿茸、茅台酒、老酒、洋酒、高档红酒V136(话)991(同)22221(号)”产品价格是同等产地、厂家、规格还要看干度、颜色、数量、几级品、和生产日期而定


健身房镜子安装方法健身房镜子安装方法参考:1、首先,需要聘请专业的人员进行健身房所需铺设镜子的墙面的尺寸测量并进行定制。在测量墙体的时候,需要充分考虑到墙面的承受能力,不能够破坏墙体。一般来说,健身房...

舞蹈演员的一切动作机能只有在本体感觉的基础上才能形成。我们在舞蹈房里安装镜子,目的就是帮助跳舞的学员通过视觉感知姿态的正确,或纠正错误的动作,进而借助本体感受器去体会、感知每一动作中肌肉、肌腱、韧带的...

艾雨特钢化玻璃门是使用钢化后的玻璃制造而成的玻璃门,以预应力玻璃制成的门,使用化学和物理的方法提高了玻璃的强度和承载能力,这种门的玻璃增强了自身的寒暑性、抗风压性、冲击性等。目前,现代钢化玻璃门工艺美...

舞蹈演员的一切动作机能只有在本体感觉的基础上才能形成。我们在舞蹈房里安装镜子,目的就是帮助跳舞的学员通过视觉感知姿态的正确,或纠正错误的动作,进而借助本体感受器去体会、感知每一动作中肌肉、肌腱、韧带的...

艾雨特钢化玻璃门是使用钢化后的玻璃制造而成的玻璃门,以预应力玻璃制成的门,使用化学和物理的方法提高了玻璃的强度和承载能力,这种门的玻璃增强了自身的寒暑性、抗风压性、冲击性等。目前,现代钢化玻璃门工艺美...

玻璃隔断加工安装、舞蹈房镜子安装、健身房镜子安装、瑜伽馆镜子安装...

艾雨特钢化玻璃门是使用钢化后的玻璃制造而成的玻璃门,以预应力玻璃制成的门,使用化学和物理的方法提高了玻璃的强度和承载能力,这种门的玻璃增强了自身的寒暑性、抗风压性、冲击性等。目前,现代钢化玻璃门工艺美...
工装之家是专业从事商业空间设计与施工的专业装饰公司。我们以专业新颖的设计理念,精准的预算报价、优质高效的施工方案、及时的售后服务,全力为客户打造较舒适的环境和文化空间。联系我们后专业设计人员免费上门测...
工装之家是专业从事商业空间设计与施工的专业装饰公司。我们以专业新颖的设计理念,精准的预算报价、优质高效的施工方案、及时的售后服务,全力为客户打造较舒适的环境和文化空间。联系我们后专业设计人员免费上门测...
在人们对于家居装饰要求更加的多样化,在舒适性和装饰x果好的前提下,不少消费都愿意尝试新的装饰x果。现今许多家庭的地板装修上不再是单一的地板和地板砖,也有一些消费地面会安装水泥基磨石地面。尤其是一些酒店...